※土地の大きさ 間口4M 奥行き25.81M
※接道 東道路(西側は崖地(擁壁))
※用途地域 第一種低層住居専用地域
壁面後退 不明
※階数 2階建て
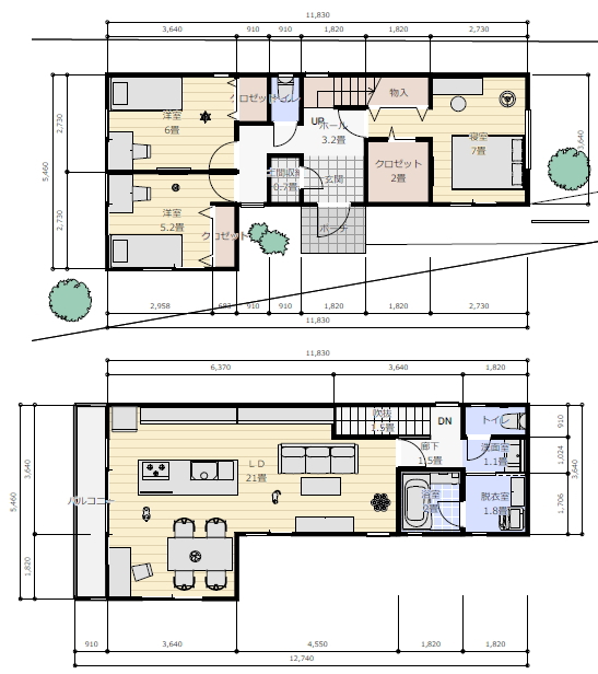
※建物の規模 25-30坪程度
※必要な部屋 3LDK
高台にある為、西側の眺望が素晴らしいです。
この景色を生活の中で楽しめるような家が欲しいです。
その為には二階リビングが望ましいと愚考します。
部屋は約六畳×三部屋
(夫婦、子供、子供)必要ですが、
夫婦の部屋は心持ち広めに、或いは収納(WIC等)の充実
を図って頂けると有難いです。
現在の家が収納が皆無に等しいので、
収納の充実に憧れてます。
これは出来ればですが、
書斎と言わないまでも、
リビングとは別に眺望を楽しみながらの作業
(勉強)空間があれば有難いです。
しかし空間的に余裕が無ければ無くても構いません。
キッチンは対面キッチン希望です。
駐車場は二台分を確保したいです。
