土地の大きさ 間口7.56m 奥行11.88m
北側が斜めになっており、西側は6.17mです。
接道 東5.4m、南2.9m、西2.9m
北側のみ隣家と面しています。
道路後退をし角地なので、
南東、南西は隅切りのため、建築制限があります。
壁面後退 –
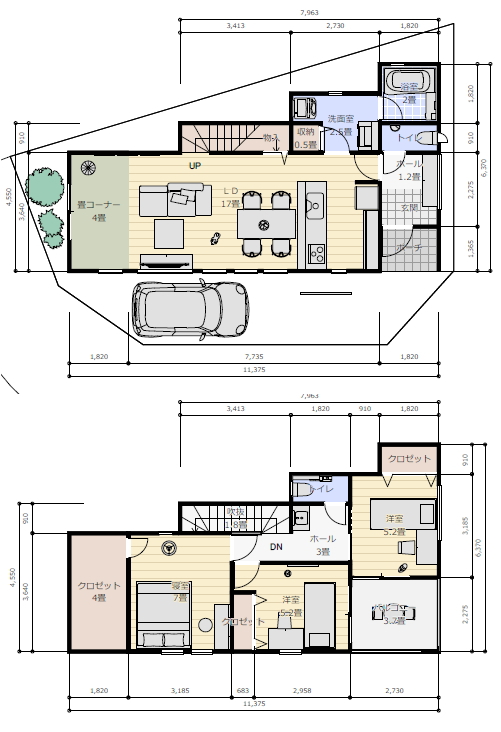
階数 2階建て
建物の規模 30坪程度
必要な部屋
建物は2階建て30坪弱くらいで
駐車場は2台、
軽とミニバンを停めたいです。
1階にLDKと4畳程度の和室が欲しいです。
2階には子供部屋4.5?5畳程度が2室、
夫婦の寝室が1室7畳程度と
ウォークインクロゼットが欲しいです。
間取の要望
角地になっているので、
日当たりの良い家にしたいです。
小さくていいので、
シューズクローゼットとパントリーが欲しいです。
脱衣洗面所は、
2.5畳で収納をつけたいです。
子供室は後から仕切れるようにしたいです。
日当たりの良い南側にLDK
キッチンは対面キッチン
リビング階段
和室はLDKに接するようにしたいです。
バルコニーで食事などをしたいので、
4畳くらい欲しいです。
1、2階にトイレをつけたいです。
家族構成
夫婦と子どもは2人の予定です。
