建物の規模:9坪
10M×10M北道路
建築主のオーダーが
盛りたくさんで
興味深いですね‥
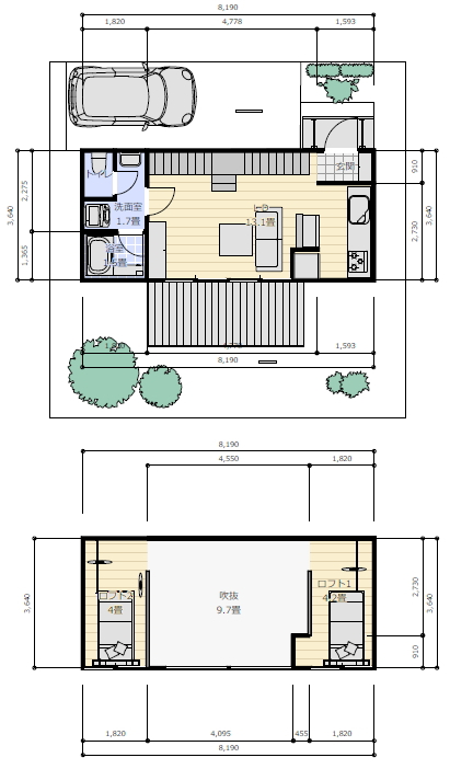
北側道路に対して敷地間口が
そこそこ余裕があるようす
なので建物は
東西横長プランのほうが
良いかもと思われます‥
キッチンダイニングを
東側に
浴室トイレ洗面水回りを
西側に配置して
天井高さ許容範囲まで抑えて
それぞれの上部にロフト状
居室を東西に振り分けプラン
階段配置は壁伝いにそれぞれ
北側から東側へ北側から西側へ
L字型に配置
リビングは中央にセット
吹き抜け planning 等‥
家族構成:二人
